ERVR Regolatori rettangolari a portata variabile con servomotore
Descrizione
Questi regolatori sono utilizzati per il controllo ed il mantenimento della
quantita’ dell’aria negli impianti a portata variabile.
quantita’ dell’aria negli impianti a portata variabile.
Note
Per una corretta lettura delle pressioni e per una tolleranza di portata del 5%, bisogna prevedere a monte un tratto di canale rettilineo avente la stessa dimensione del regolatore e pari a 2/3 volte la dimensione della base. in caso contrario, la portata potra’ subire variazioni tra il 10% e il 20% rispetto al valore calibrato.
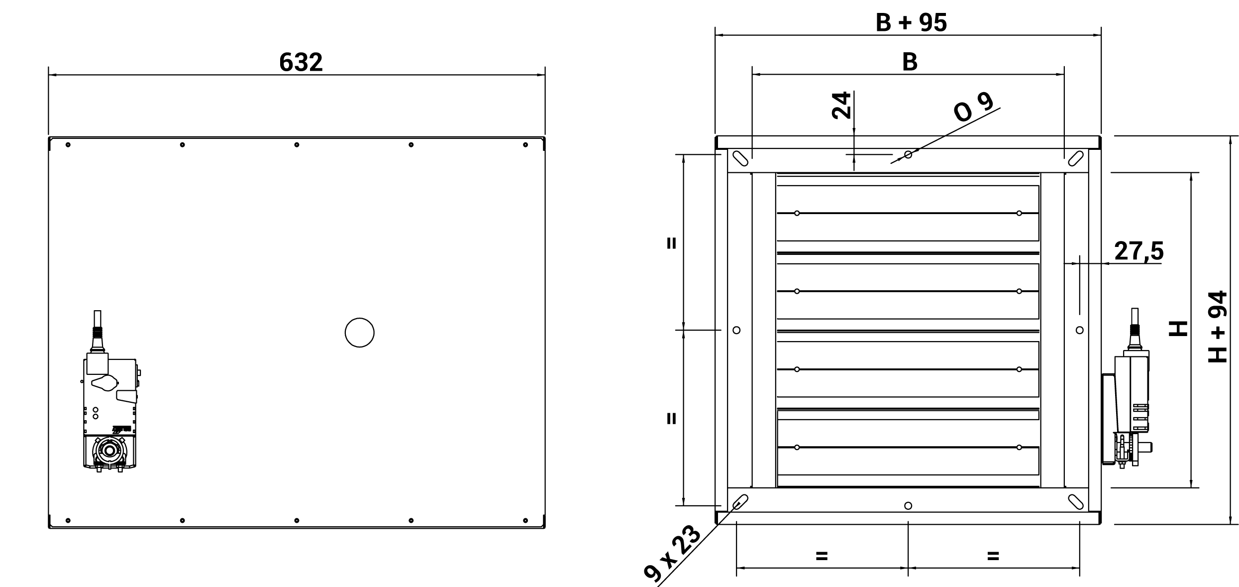
Caratteristiche
-Involucro in lamiera d’acciaio zincato;
-Sonda di Δp dinamico per la misura ed il
mantenimento della portata in funzione della richiesta dell’ambiente;
-Regolatore di portata fornito con motore Belimo LMV-D3MP.
-Serranda di regolazione a tenuta in acciaio zincato con guarnizioni laterali e longitudinali;
-Campo di funzionamento da 20 a 1000 Pa;
-Regolazione e controllo della portata tramite motoregolatore linearizzato;
-Prove del rumore autogenerato ed irradiato secondo le normative UNI EN 25135 e ISO 3741.
-Regolatore di portata VAV-Compact, AC/DC 24 V, MP-Bus, IP54
LMV-D3-MP (5Nm) (STANDARD)
-Sonda di Δp dinamico per la misura ed il
mantenimento della portata in funzione della richiesta dell’ambiente;
-Regolatore di portata fornito con motore Belimo LMV-D3MP.
-Serranda di regolazione a tenuta in acciaio zincato con guarnizioni laterali e longitudinali;
-Campo di funzionamento da 20 a 1000 Pa;
-Regolazione e controllo della portata tramite motoregolatore linearizzato;
-Prove del rumore autogenerato ed irradiato secondo le normative UNI EN 25135 e ISO 3741.
-Regolatore di portata VAV-Compact, AC/DC 24 V, MP-Bus, IP54
LMV-D3-MP (5Nm) (STANDARD)
Modelli
ERVR singolo involucro.
ERVR-I doppio involucro.
ERVR-I doppio involucro.
A richiesta
- Regolatore di portata VAV-Compact, AC/DC 24 V, BACnet MS/TP, Modbus RTU, MP-Bus, IP54 LMV-D3-MOD (5Nm)
- Regolatore di portata VAV-Compact, AC/DC 24 V, KNX (S-Mode), IP54
LMV-D3-KNX (5Nm)
- Dimensioni intermedie.
- Regolatore di portata VAV-Compact, AC/DC 24 V, KNX (S-Mode), IP54
LMV-D3-KNX (5Nm)
- Dimensioni intermedie.
Schema semplice involucro
Schema doppio involucro
Dati di funzionamento e listino prezzi
In fase d'ordine indicare la portata aria minima e massima da programmare.
| Modello | Portata aria minima | Portata aria massima | ERVR singolo involucro. Segnale di controllo 2...10V | ERVR singolo involucro. Segnale di controllo 0...10V | ERVR-I doppio involucro. Segnale di controllo 2...10V | ERVR-I doppio involucro. Segnale di controllo 0...10V | |
| B mm | H mm | m3/h | m3/h | euro | euro | euro | euro |
| 200 | 110 | 160 | 790 | 613,72 | 613,72 | 710,15 | 710,15 |
| 400 | 110 | 315 | 1580 | 662,23 | 662,23 | 778,06 | 778,06 |
| 600 | 110 | 475 | 2375 | 710,73 | 710,73 | 845,96 | 845,96 |
| 400 | 210 | 605 | 3040 | 705,83 | 705,83 | 839,10 | 839,10 |
| 600 | 210 | 905 | 4540 | 758,50 | 758,50 | 912,84 | 912,84 |
| 800 | 210 | 1210 | 6040 | 807,40 | 807,40 | 981,29 | 981,29 |
| 600 | 310 | 1340 | 6710 | 804,53 | 804,53 | 977,29 | 977,29 |
| 800 | 310 | 1785 | 8915 | 857,58 | 857,58 | 1.051,55 | 1.051,55 |
| 1000 | 310 | 2230 | 11160 | 908,59 | 908,59 | 1.122,97 | 1.122,97 |
| 600 | 410 | 1770 | 8875 | 850,58 | 850,58 | 1.041,75 | 1.041,75 |
| 800 | 410 | 2360 | 11790 | 907,77 | 907,77 | 1.121,82 | 1.121,82 |
| 1000 | 410 | 2950 | 14750 | 978,16 | 978,16 | 1.220,35 | 1.220,35 |