Descrizione

Serrande di regolazione con movimento delle alette tramite ingranaggi posti all'esterno del flusso dell'aria e speciali guarnizioni sulle alette in grado di garantire una classe di tenuta 4 secondo la norma EN 1751.

Caratteristiche

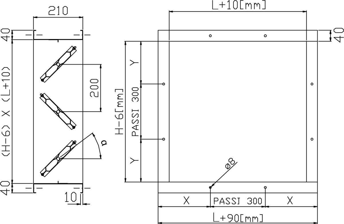
  • Telaio in acciaio zincato 15/10;
  • alette tamburate con speciale profilo per l'alloggiamento delle guarnizioni, in lamiera d'acciaio zincata, spessore 0,8+0,8 mm;
  • passo alette 200 mm;
  • levismi esterni per il comando della serranda;
  • boccole in bronzo;
  • perni di comando ø18 mm zincati;
  • tenuta laterale con lamelle in inox e singola tenuta su ogni aletta.

A richiesta

  • Con comando manuale R12;
  • Versione in AISI 304;
  • Servomotore elettrico.

Caratteristiche Dimensionali

LNr. Fori ø 8 mmX
2001140
3001190
400290
5002140
6002190
700390
8003140
9003190
1000490
11004140
12004190
1300590
14005140
15005190

HNr. Fori ø 8 mmY
21000
4101205
6101305
8102255
10103205
12103305
14104255
16105205
18105305
20106255

Perdita di Carico e Rumore Generato

  • V: velocità di attraversamento (m/s).
  • Δpt [Pa]: perdite di carico in Pascal.
  • LwA [dB(A)]: indice di rumorosità.
  • α: angolo di apertura della serranda di regolazione, 0° le alette sono completamente aperte.

*Velocità sconsigliata.

Vk (m/s)α 0°α 30°α 60°
Δpt [Pa]LwA [dB(A)]Δpt [Pa]LwA [dB(A)]Δpt [Pa]LwA [dB(A)]
1< 5< 2063213049
2< 523234952069
3< 5345258118516
4< 5429466135083
5< 54814571> 1500*87
6< 55321575> 1500*92

Coppia di rotazione necessaria per l'apertura e chiusura della serranda

Superficie [m2]Servomotore
CON ritorno a molla [Nm]SENZA ritorno a molla [Nm]
< 0,202010
< 1,503020
< 2,204040
< 3,006040
< 4,00-80

Listino Prezzi

HL
200300400500600700800900100011001200130014001500
 EuroEuroEuroEuroEuroEuroEuroEuroEuroEuroEuroEuroEuroEuro
210246,26 258,49 270,96 283,46 295,35 308,45 320,91 333,12 345,61 357,81 370,33 383,12 395,01 407,79
410297,12 314,10 331,05 348,01 364,66 381,90 398,84 415,80 432,75 449,71 466,69 483,94 500,59 517,84
610348,01 369,71 391,12 412,54 433,97 455,36 476,80 498,50 519,91 541,63 563,05 584,74 606,18 627,88
810398,84 424,74 450,63 476,80 502,65 528,53 554,71 580,88 606,77 633,26 659,10 685,28 711,44 737,64
1010449,71 480,08 510,70 540,82 571,67 602,31 632,94 672,02 693,91 724,85 755,47 786,12 816,74 847,68
1210500,00 526,91 570,50 605,58 640,67 675,75 710,85 745,97 781,06 816,47 851,56 886,95 922,05 957,41
1410550,85 590,71 630,25 670,11 707,18 749,54 789,08 828,79 868,49 908,06 947,90 987,76 1.027,62 1.067,48
1610601,41 645,71 690,05 734,36 778,37 822,71 867,03 911,31 1.132,93 999,69 1.043,97 1.088,62 1.133,35 1.177,54
1810652,27 701,05 749,84 798,91 847,68 896,47 945,25 994,01 1.042,79 1.091,88 1.140,64 1.189,42 1.238,21 1.287,31
2010702,84 756,36 809,61 863,15 916,40 969,92 1.023,17 1.076,69 1.129,94 1.183,49 1.236,74 1.290,26 1.343,52 1.397,04

Comando Manuale

DescrizioneEuro
Comando Manuale R12 perno ø 18mma.r.