EVHRD EC Recuperatore con deumidificazione e trattamento aria da 300 a 500 m³/h con compressore ad inverter
Descrizione
L'unità è composta da un monoblocco comprensivo di ogni componente per il corretto funzionamento con ampi range di temperatura.
Caratteristiche
Pannellature realizzate in doppio pannello sandwich, con finitura verniciata esternamente.
La coibentazione dei pannelli è realizzata con isolante ad alte prestazioni di spessore 23 mm.
Scambiatore in polipropilene in controcorrente ad alta efficienza superiore al 90%. Funzionamento estivo ed invernale.
Ventilatori plug-fun Brushless con motore elettronico e comando modulante. Altissima efficienza e bassi livelli di rumorosità. Conformi alla direttiva Erp.
Filtro ePM1 facilmente estraibile sulla presa aria esterna e sull'aria di mandata. Filtri Coarse con bassa perdita di carico facilmente estraibili sull'aria di ricircolo.
Quadro elettrico a bordo unità con microprocessore e regolazione dedicata.
Circuito frigorifero con compressore ad inverter ad alta efficienza.
Elettronica di comando
Quadro elettrico a bordo unità con microprocessore e regolazione dedicata. Gestione dei ventilatori, visualizzazione delle sonde di temperatura interno macchina, gestione filtri sporchi temporizzata, gestione dell'aria di ricircolo e di rinnovo. Possibilità di comando dell'unità con queste tre soluzioni :
1-Gestione attraverso comandi esterni e segnale 0-10vdc per controllo portata aria da minima a massima;
2-Gestione attraverso pannello remoto con sensore di temperatura e di umidità integrato
3-Comunicazione MODBUS RTU RS 485
Impiego
Versione
Versione DC: versione per deumidifica ed integrazione in raffrescamento/riscaldamento.
Unità per il rinnovo dell'aria ambiente con quella esterna attraverso un recuperatore ad alta efficienza, la portata d'aria viene aumentata ricircolando parzialmente l'aria ambiente consentendo così di deumidificare l'aria e di fornire un’integrazione della potenza frigorifera/termica all'impianto di climatizzazione radiante.
Durante il periodo estivo (compressore attivo) l'unità può funzionare in 2 modalità:
Rinnovo + Deumidifica: L'unità condensa parzialmente in aria e parzialmente in acqua tramite il condensatore a piastre, ottenendo aria deumidificata;
Rinnovo + Deumidifica + Integrazione raffrescamento: L'unità condensa totalmente in acqua, ottenendo così aria deumidificata e raffrescata. Durante il periodo invernale (compressore spento) la batteria idronica è alimentata con acqua calda dall'impianto di riscaldamento e si comporta come un termo ventilante con recuperatore.
Funzionamento solo ventilazione
L'unità EVHRD EC provvederà a soddisfare la ventilazione meccanica con recupero calore ad alta efficienza. Sarà possibile selezionare le velocità dei ventilatori in modo da ottenere la portata desiderata per soddisfare le richieste di rinnovo dell'aria.
Le portate selezionabili sono:
Sulla taglia EVHRD EC 30-15 da 0 a 150 m³/h
Sulla taglia EVHRD EC 50-25 da 0 a 250 m³/h
Funzionamento ventilazione, deumidificazione ed integrazione
L'unità EVHRD EC continuerà a soddisfare la ventilazione meccanica con recupero calore ad alta efficienza ma aumenterà la portata aria, ricircolando da un condotto dedicato aria ambiente per aumentare il volume aria sulla parte di integrazione.
La parte di integrazione è costituita da una versione
con deumidificazione ed integrazione e batterie integrative idroniche.
Trova la sua più comune applicazione, negli impianti radianti dove avviene la necessità della deumidificazione e l'integrazione del raffrescamento nel periodo estivo. Durante il funzionamento l'unità attraverso sonde di umidità e temperatura attiva il circuito frigorifero composto dal compressore, la batteria di evaporazione ad aria ed il condensatore ad aria e ad acqua alimentato dall'impianto radiante realizzando così la deumidifica dell'aria e l'integrazione del raffrescamento.
Nel periodo invernale, è possibile comunque utilizzare l'unità per integrare il riscaldamento radiante attraverso l'alimentazione della batteria idronica ad acqua calda ottenendo un rapido apporto termico all'ambiente.
Prestazioni unità - Dati generali
(1) Temperatura aria esterna 7°; umidità relativa 72%. temperatura ambiente 20°C; umidità relativa 28%, portata aria nominale
| Versione ORIZZONTALE | Versione VERTICALE | ||||
| Grandezza EVHRD EC | 30/15 | 50/25 | 30/15 | 50/25 | |
| Efficienza nominale invernale recuperatore (1) | % | 85,7 | 86 | 83,9 | 86 |
| Portata aria esterna nominale | m³/h | 154 | 265 | 161 | 258 |
| Portata aria totale | m³/h | 297 | 520 | 302 | 538 |
| classificazione dei vari modelli secondo il regolamento europeo 1253/2014 e 1254/2014 | B | A | B | A | |
Caretteristiche tecniche
(1) Temperatura aria esterna 33°; umidità relativa 50%. temperatura ambiente 25°C; umidità relativa 50%, temperatura acqua 16°. portata aria ed acqua nominali
(2) Temperatura aria esterna 33°; umidità relativa 50%. temperatura ambiente 25°C; umidità relativa 50%, temperatura acqua 16°. portata aria ed acqua nominali
(3) Temperatura ambiente 20°C; umidità relativa 50%, portata aria nominale; Acqua in 35°C
| EVHRD EC | ORIZZONTALE | VERTICALE | |||
| 30/15 | 50/25 | 30/15 | 50/25 | ||
| Capacità di deumidificazione utile (al netto del contenuto entalpico dell'aria esterna) (1) | l/24h | 75 | 99 | 75 | 99 |
| Potenza frigorifera totale 2 | kW | 3,3 | 4,35 | 3,3 | 4,35 |
| Potenza assorbita compressore | kW | 0,88 | 1,06 | 0,88 | 1,06 |
| Frequenza compressore | Hz | 68 | 80 | 68 | 80 |
| EER | 3,71 | 4,1 | 3,71 | 4,1 | |
| Potenzafrigorifera sensibile (disponibile sono in fase di integrazione) | kW | 1,4 | 1,91 | 1,4 | 1,91 |
| Potenza termica resa 3 | kW | 0,7 | 1,25 | 0,7 | 1,25 |
| Portata acqua | m3/h | 0,15 | 0,2 | 0,15 | 0,2 |
| Perdita di carico | Kpa | 12 | 9 | 12 | 9 |
| Pressione sonora Lp ad 3 Mt | dB(A) | 41,6 | 42,9 | 41,0 | 41,4 |
| V/Ph/Hz | 230/1/50 | 230/1/50 | |||
| Corrente massima assorbita in funzionamento | A | 4,7 | 5,9 | 4,7 | 5,9 |
| Potenza massima assorbita in funzionamento | kW | 1,02 | 1,27 | 1,02 | 1,27 |
| Corrente massima assorbita componenti | A | 7,5 | 8,1 | 7,5 | 8,1 |
| Potenza massima assorbita componenti | kW | 1,61 | 1,73 | 1,61 | 1,73 |
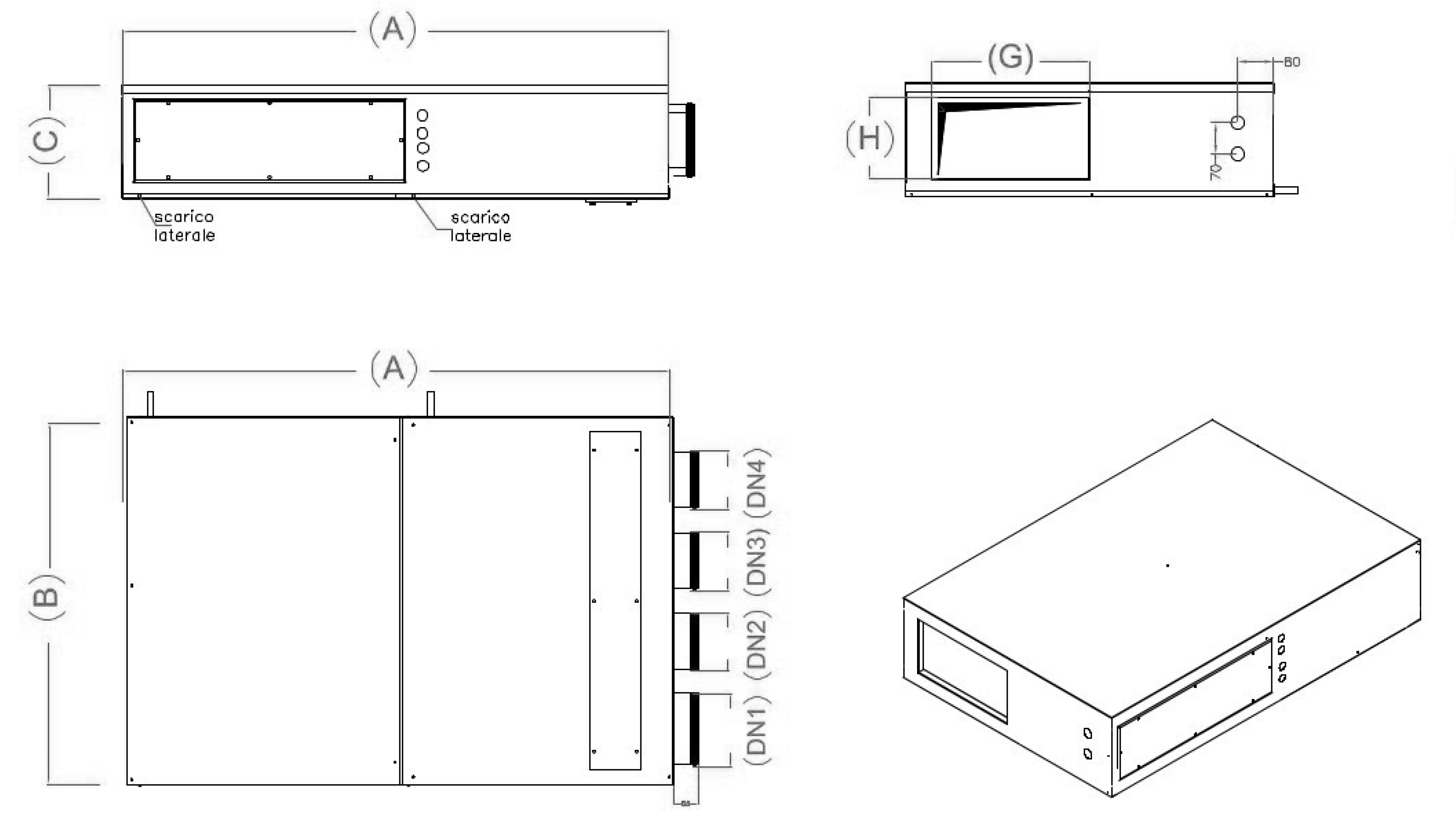
Dimensioni versione orizzontale:
| Dimensioni EVHRD EC | Versione ORIZZONTALE | ||
| 30/15 | 50/25 | ||
| Larghezza A | mm | 1220 | 1220 |
| Profondità B | mm | 820 | 960 |
| Altezza C | mm | 255 | 330 |
| Ingresso aria di ricircolo DN1 | mm | 160 | 200 |
| Ingresso aria Viziata DN2 | mm | 125 | 160 |
| Ingresso aria di rinnovo DN3 | mm | 125 | 160 |
| Espulsione aria viziata DN4 | mm | 125 | 160 |
| Mandata GxH | mm | 347x177 | 518x252 |
| Attacchi acqua mandata/ritorno | Ø | 1/2"-1/2" | 1/2"-1/2" |
| Diametro scarico condensa | Ø | 20 | 20 |
Dimensione versione verticale:
| Dimensioni EVHRD EC | Versione VERTICALE | ||
| EVHRD 30/15 | EVHRD 50/25 | ||
| Larghezza L | mm | 885 | 985 |
| Profondità W | mm | 515 | 740 |
| Altezza H | mm | 1085 | 1185 |
| Ingresso aria di ricircolo DN1 | mm | 160 | 200 |
| Ingresso aria Viziata DN2 | mm | 125 | 160 |
| Ingresso aria di rinnovo DN3 | mm | 125 | 160 |
| Espulsione aria viziata DN4 | mm | 125 | 160 |
| Mandata | mm | 347x177 | 518x252 |
| Attacchi acqua Mandata/ritorno | Ø | 1/2"-1/2" | 1/2"-1/2" |
| Diametro scarico condensa | Ø | 20 | 20 |
Listino recuperatori e accessori VERSIONE K
| Modello | euro | accessori | ||||||
| controllo elettronico remoto | controllo elettronico remoto | Valvola acqua on/off a 2 vie 1/2" | Valvola acqua on/off a 3 vie 1/2" | kit filtri | EDRM Serranda di modulazione presa aria esterna | |||
| EVCNU | EVCNU-2 | |||||||
| euro | euro | euro | euro | euro | ||||
| ORIZZONTALE | EVHRD EC 30/15 | 7.127,33 | 296,66 | 503,03 | 311,90 | 363,89 | 92,73 | 734,76 |
| EVHRD EC 50/25 | 7.747,33 | 296,66 | 503,03 | 311,90 | 363,89 | 101,62 | 778,29 | |
| VERTICALE | EVHRD EC 30/15 | 7.756,56 | 296,66 | 503,03 | 311,90 | 363,89 | 92,73 | 734,76 |
| EVHRD EC 50/25 | 8.376,56 | 296,66 | 503,03 | 311,90 | 363,89 | 101,62 | 778,29 | |
Listino plenum di mandata isolato
Tutte le dimensioni sono espresse in mm.
| Configurazione | Modello | L | H | P | Ø | euro |
| ORIZZONTALE | EVHRD EC 30/15 | 347 | 177 | 100 | 1x160 | 66,30 |
| EVHRD EC 50/25 | 518 | 252 | 100 | 2x160 | 101,87 | |
| VERTICALE | EVHRD EC 30/15 | 347 | 177 | 100 | 1x160 | 66,30 |
| EVHRD EC 50/25 | 518 | 252 | 100 | 2x160 | 101,87 |