EVHRD Recuperatore con deumidificazione e trattamento aria da 300 a 500 m³/h
Descrizione
L'unità è composta da un monoblocco comprensivo di ogni componente per il corretto funzionamento con ampi range di temperatura.
Caratteristiche
Pannellature realizzate in doppio pannello sandwich, con finitura verniciata esternamente.
La coibentazione dei pannelli è realizzata con isolante ad alte prestazioni di spessore 23 mm.
Scambiatore in polipropilene in controcorrente ad alta efficienza superiore al 90%. Funzionamento estivo ed invernale.
Ventilatori plug-fun Brushless con motore elettronico e comando modulante. Altissima efficienza e bassi livelli di rumorosità. Conformi alla direttiva Erp.
Filtro ePM1 facilmente estraibile sulla presa aria esterna e sull'aria di mandata. Filtri Coarse con bassa perdita di carico facilmente estraibili sull'aria di ricircolo.
Quadro elettrico a bordo unità con microprocessore e regolazione dedicata.
Circuito frigorifero con compressore ad alta efficienza.
Elettronica di comando
Quadro elettrico a bordo unità con microprocessore e regolazione dedicata. Gestione dei ventilatori, visualizzazione delle sonde di temperatura interno macchina, gestione filtri sporchi temporizzata, gestione dell'aria di ricircolo e di rinnovo. Possibilità di comando dell'unità con queste tre soluzioni :
1-Gestione attraverso comandi esterni e segnale 0-10vdc per controllo portata aria da minima a massima;
2-Gestione attraverso pannello remoto con sensore di temperatura e di umidità integrato
3-Comunicazione MODBUS RTU RS 485
Impiego
Versioni
Versione D: versione per deumidifica ad aria neutra (isotermica).
Unità per il rinnovo dell'aria ambiente con quella esterna attraverso un recuperatore ad alta efficienza, la portata d'aria viene aumentata ricircolando parzialmente l'aria ambiente consentendo così il funzionamento del circuito frigorifero, ottenendo durante il periodo estivo (compressore attivo) aria deumidificata.
Dotata di batteria idronica di post raffreddamento/riscaldamento che se alimentata consente di fornire un'integrazione della potenza frigorifera/termica all'impianto di climatizzazione radiante (il collegamento all'impianto di riscaldamento/raffrescamento è opzionale e non pregiudica la deumidificazione dell'aria).
Versione DC: versione per deumidifica ed integrazione in raffrescamento/riscaldamento.
Unità per il rinnovo dell'aria ambiente con quella esterna attraverso un recuperatore ad alta efficienza, la portata d'aria viene aumentata ricircolando parzialmente l'aria ambiente consentendo così di deumidificare l'aria e di fornire un’integrazione della potenza frigorifera/termica all'impianto di climatizzazione radiante.
Durante il periodo estivo (compressore attivo) l'unità può funzionare in 2 modalità:
Rinnovo + Deumidifica: L'unità condensa parzialmente in aria e parzialmente in acqua tramite il condensatore a piastre, ottenendo aria deumidificata;
Rinnovo + Deumidifica + Integrazione raffrescamento: L'unità condensa totalmente in acqua, ottenendo così aria deumidificata e raffrescata. Durante il periodo invernale (compressore spento) la batteria idronica è alimentata con acqua calda dall'impianto di riscaldamento e si comporta come un termo ventilante con recuperatore.
Funzionamento solo ventilazione
L'unità EVHRD provvederà a soddisfare la ventilazione meccanica con recupero calore ad alta efficienza. Sarà possibile selezionare le velocità dei ventilatori in modo da ottenere la portata desiderata per soddisfare le richieste di rinnovo dell'aria.
Le portate selezionabili sono:
Sulla taglia EVHRD 30-15 da 0 a 150 m³/h
Sulla taglia EVHRD 50-25 da 0 a 250 m³/h
Funzionamento ventilazione, deumidificazione ed integrazione
L'unità EVHRD continuerà a soddisfare la ventilazione meccanica con recupero calore ad alta efficienza ma aumenterà la portata aria, ricircolando da un condotto dedicato aria ambiente per aumentare il volume aria sulla parte di integrazione.
La parte di integrazione può essere costituita da una versione
con deumidificazione (Versione D), da una versione con deumidifica ed integrazione (Versione DC) e batterie integrative idroniche.
La versione D, trova la sua più comune applicazione, negli impianti radianti dove avviene la necessità della sola deumidificazione nel periodo estivo. Durante il funzionamento l'unità attraverso sonde di umidità e temperatura attiva il circuito frigorifero composto dal compressore, la batteria di evaporazione ad aria ed il condensatore ad aria realizzando così la deumidifica. E' possibile alimentando la batteria idronica di post con l'acqua dell'impianto radiante (la mancata alimentazione dell batteria non compromette il funzionamento del circuito frigorifero) è possibile realizzare un'integrazione al raffrescamento estivo ed al riscaldamento invernale.
La versione DC, trova la sua più comune applicazione, negli impianti radianti dove avviene la necessità della deumidificazione e l'integrazione del raffrescamento nel periodo estivo. Durante il funzionamento l'unità attraverso sonde di umidità e temperatura attiva il circuito frigorifero composto dal compressore, la batteria di evaporazione ad aria ed il condensatore ad aria e ad acqua alimentato dall'impianto radiante realizzando così la deumidifica dell'aria e l'integrazione del raffrescamento.
Nel periodo invernale, è possibile comunque utilizzare l'unità per integrare il riscaldamento radiante attraverso l'alimentazione della batteria idronica ad acqua calda ottenendo un rapido apporto termico all'ambiente.
Prestazioni unità - Dati generali
(1) Temperatura aria esterna 7°; umidità relativa 72%. temperatura ambiente 20°C; umidità relativa 28%, portata aria nominale
| Versione ORIZZONTALE | Versione VERTICALE | ||||
| Grandezza | EVHRD 30/15 | EVHRD 50/25 | EVHRD 30/15 | EVHRD 50/25 | |
| Efficienza nominale invernale recuperatore (1) | % | 85,7 | 86 | 83,9 | 86 |
| Portata aria esterna nominale | m³/h | 154 | 265 | 161 | 258 |
| Portata aria totale | m³/h | 297 | 520 | 302 | 538 |
| classificazione dei vari modelli secondo il regolamento europeo 1253/2014 e 1254/2014 | B | A | B | A | |
Versione D:
(1) Temperatura aria esterna 30°; umidità relativa 60%. temperatura ambiente 25°C; umidità relativa 50%, portata aria nominale
(2) Temperatura ambiente 25°C; umidità relativa 60%, portata aria nominale; Acqua in 16°C Acqua out 18°C
(3) Temperatura ambiente 20°C; umidità relativa 60%, portata aria nominale; Acqua in 35°C Acqua out 30°C.
| VERSIONE D | Versione ORIZZONTALE | Versione VERTICALE | |||
| EVHRD 30/15 | EVHRD 50/25 | EVHRD 30/15 | EVHRD 50/25 | ||
| Capacità di deumidificazione utile (al netto del contenuto entalpico dell'aria esterna) (1) | l/24h | 30,5 | 56 | 30,5 | 56 |
| Potenza frigorifera resa batteria idronica (2) | kW | 0,7 | 1,56 | 0,7 | 1,56 |
| Portata acqua | m³/h | 0,25 | 0,35 | 0,25 | 0,35 |
| Perdita di carico | Kpa | 8,5 | 10,5 | 8,5 | 10,5 |
| Potenza termica resa 3 | kW | 0,86 | 1,4 | 0,86 | 1,4 |
| Pressione sonora Lp ad 3 Mt | dB(A) | 40,8 | 40,9 | 40,8 | 40,9 |
| Alimentazione | V/Ph/Hz | 230 / 1 / 50 | |||
| Corrente massima assorbita | A | 5,5 | 7 | 5,5 | 7 |
Versione DC:
(1) Temperatura aria esterna 30°; umidità relativa 60%. temperatura ambiente 25°C; umidità relativa 50%, portata aria nominale
(2) Temperatura ambiente 25°C; umidità relativa 60%, portata aria nominale; Acqua in 16°C Acqua out 18°C
(3) Temperatura ambiente 20°C; umidità relativa 60%, portata aria nominale; Acqua in 35°C Acqua out 30°C.
| VERSIONE DC | Versione ORIZZONTALE | Versione VERTICALE | |||
| EVHRD 30/15 | EVHRD 50/25 | EVHRD 30/15 | EVHRD 50/25 | ||
| Capacità di deumidificazione utile (al netto del contenuto entalpico dell'aria esterna) (1) | l/24h | 30,5 | 56 | 30,5 | 56 |
| Potenza frigorifera resa compressore (2) | kW | 1,55 | 2,4 | 1,55 | 2,4 |
| Potenza frigorifera resa batteria idronica (2) | kW | 0,7 | 1,56 | 0,7 | 1,56 |
| Portata acqua | m³/h | 0,25 | 0,35 | 0,25 | 0,35 |
| Perdita di carico | Kpa | 8,5 | 10,5 | 8,5 | 10,5 |
| Potenza termica resa 3 | kW | 0,86 | 1,4 | 0,86 | 1,4 |
| Pressione sonora Lp ad 3 Mt | dB(A) | 40,8 | 40,9 | 40,8 | 40,9 |
| Alimentazione | V/Ph/Hz | 230 / 1 / 50 | |||
| Corrente massima assorbita | A | 5,5 | 7 | 5,5 | 7 |
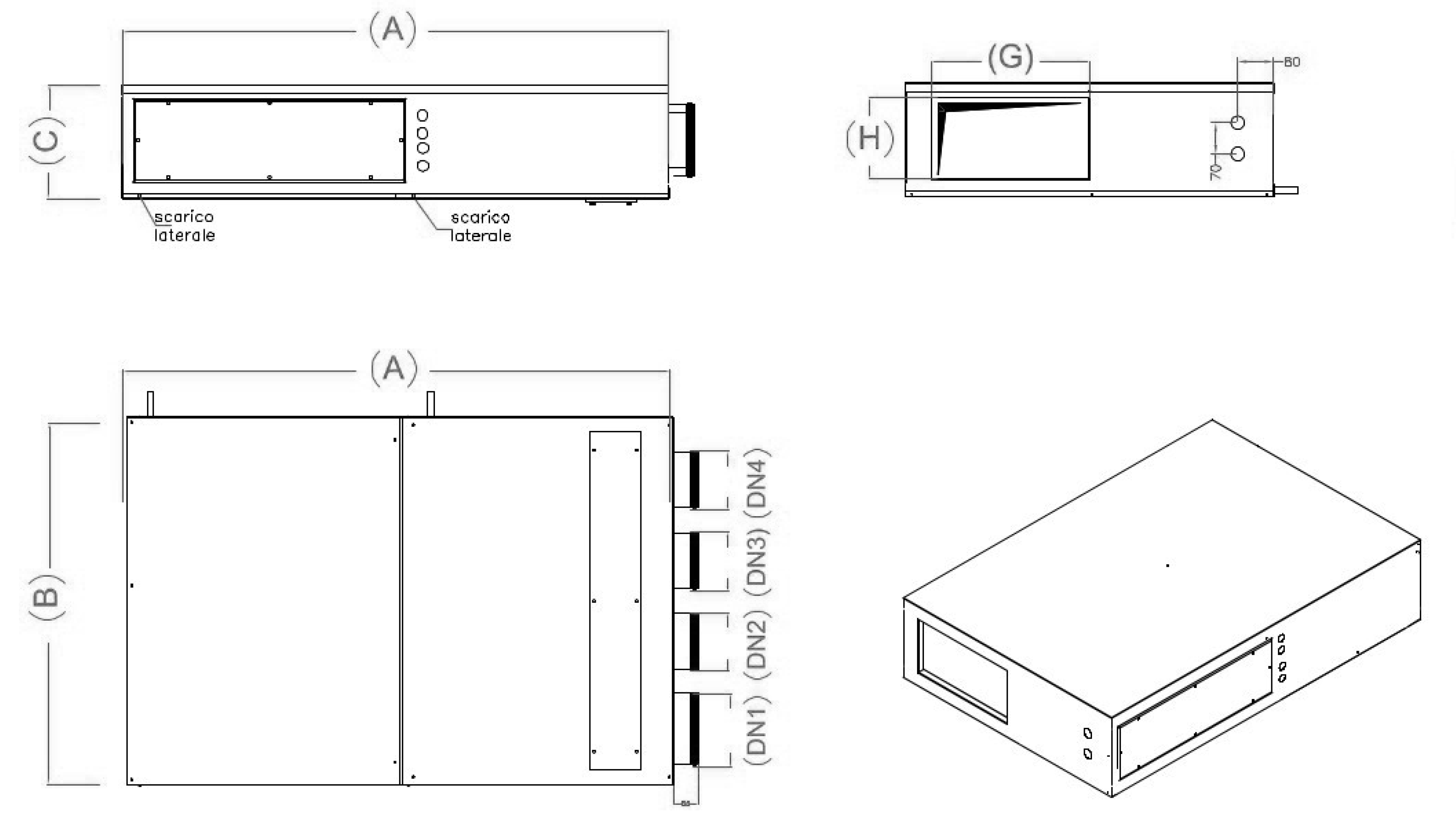
Dimensioni versione orizzontale:
| Dimensioni | Versione ORIZZONTALE | ||
| EVHRD 30/15 | EVHRD 50/25 | ||
| Larghezza A | mm | 1220 | 1220 |
| Profondità B | mm | 820 | 960 |
| Altezza C | mm | 255 | 330 |
| Ingresso aria di ricircolo DN1 | mm | 160 | 200 |
| Ingresso aria Viziata DN2 | mm | 125 | 160 |
| Ingresso aria di rinnovo DN3 | mm | 125 | 160 |
| Espulsione aria viziata DN4 | mm | 125 | 160 |
| Mandata GxH | mm | 347x177 | 518x252 |
| Attacchi acqua mandata/ritorno | Ø | 1/2"-1/2" | 1/2"-1/2" |
| Diametro scarico condensa | Ø | 20 | 20 |
Dimensione versione verticale:
| Dimensioni | Versione VERTICALE | ||
| EVHRD 30/15 | EVHRD 50/25 | ||
| Larghezza L | mm | 885 | 985 |
| Profondità W | mm | 515 | 740 |
| Altezza H | mm | 1085 | 1185 |
| Ingresso aria di ricircolo DN1 | mm | 160 | 200 |
| Ingresso aria Viziata DN2 | mm | 125 | 160 |
| Ingresso aria di rinnovo DN3 | mm | 125 | 160 |
| Espulsione aria viziata DN4 | mm | 125 | 160 |
| Mandata | mm | 347x177 | 518x252 |
| Attacchi acqua Mandata/ritorno | Ø | 1/2"-1/2" | 1/2"-1/2" |
| Diametro scarico condensa | Ø | 20 | 20 |
Listino recuperatori e accessori VERSIONE K
| Modello | versione del recuperatore | accessori | ||||||
| D | DC | controllo elettronico remoto | controllo elettronico remoto | Valvola acqua on/off a 2 vie 1/2" | Valvola acqua on/off a 3 vie 1/2" | kit filtri | ||
| EVCNU | EVCNU-2 | |||||||
| euro | euro | euro | euro | euro | euro | euro | ||
| ORIZZONTALE | EVHRD 30/15 | 5.564,55 | 5.944,78 | 296,66 | 503,03 | 311,90 | 363,89 | 92,73 |
| EVHRD 50/25 | 6.241,21 | 6.572,65 | 296,66 | 503,03 | 311,90 | 363,89 | 101,62 | |
| VERTICALE | EVHRD 30/15 | 6.164,91 | 6.545,14 | 296,66 | 503,03 | 311,90 | 363,89 | 92,73 |
| EVHRD 50/25 | 6.977,89 | 7.309,34 | 296,66 | 503,03 | 311,90 | 363,89 | 101,62 | |
Listino plenum di mandata isolato
Tutte le dimensioni sono espresse in mm.
| Configurazione | Modello | L | H | P | Ø | euro |
| ORIZZONTALE | EVHRD 30/15 | 347 | 177 | 100 | 1x160 | 66,30 |
| EVHRD 50/25 | 518 | 252 | 100 | 2x160 | 101,87 | |
| VERTICALE | EVHRD 30/15 | 347 | 177 | 100 | 1x160 | 66,30 |
| EVHRD 50/25 | 518 | 252 | 100 | 2x160 | 101,87 |