EVHRP SLIM Recuperatore di calore ad alta efficienza per portate fino 110 m³/h
Descrizione
Unità di ventilazione completa di recuperatore di calore dedicata al ricambio dell'aria senza sprechi energetici.
L'unità è particolarmente indicata per singole unità familiari, appartamenti ed in tutti i casi dove le portate nominali per il ricambio dell'aria non siano superiori ai 110 m³/h. Portata costante selezionabile in 3 livelli.
L'unità è particolarmente indicata per singole unità familiari, appartamenti ed in tutti i casi dove le portate nominali per il ricambio dell'aria non siano superiori ai 110 m³/h. Portata costante selezionabile in 3 livelli.
Caratteristiche
-Telaio autoportante in lamiera.
Pannelli in lamiera zincata, verniciata esternamente con isolamento interno in Eps ad alte densità; estetica frontale in Alucobond Composito
-Scambiatore in polipropilene a flussi incrociati controcorrente ad alto rendimento. Basse temperature di congelamento. Altissima efficienza di scambio.
-Ventilatori Brushless con motore elettronico e comando a portata costante; altissima efficienza e bassi livelli di rumorosità.
-Filtri ePM1 80% con bassa perdita di carico sia per mandata che per ripresa, facilmente estraibili.
Pannelli in lamiera zincata, verniciata esternamente con isolamento interno in Eps ad alte densità; estetica frontale in Alucobond Composito
-Scambiatore in polipropilene a flussi incrociati controcorrente ad alto rendimento. Basse temperature di congelamento. Altissima efficienza di scambio.
-Ventilatori Brushless con motore elettronico e comando a portata costante; altissima efficienza e bassi livelli di rumorosità.
-Filtri ePM1 80% con bassa perdita di carico sia per mandata che per ripresa, facilmente estraibili.
Elettronica di comando versione S2
l’unità viene fornita senza scheda elettronica e la velocità dei ventilatori viene variata mediante segnale 0-10V in ingresso.
E’ possibile acquistare a parte il terminale remoto EVTDV con display LCD per il controllo della velocità dei ventilatori e del Bypass con diverse funzioni evolute, tra cui:
- controllo della velocità dei singoli ventilatori in modo indipendente che comporta la possibilità di utilizzo della macchina in modalità pressione o depressione;
- segnalazione filtri sporchi temporizzato;
- possibilità di collegare il sensore di qualità dell'aria EVSQV venduto separatamente.
E’ possibile acquistare a parte il terminale remoto EVTDV con display LCD per il controllo della velocità dei ventilatori e del Bypass con diverse funzioni evolute, tra cui:
- controllo della velocità dei singoli ventilatori in modo indipendente che comporta la possibilità di utilizzo della macchina in modalità pressione o depressione;
- segnalazione filtri sporchi temporizzato;
- possibilità di collegare il sensore di qualità dell'aria EVSQV venduto separatamente.
Elettronica di comando versione IN2
Scheda elettronica per gestione velocità a 3 gradini, funzione antigelo e bypass automatico. Pannello remoto touch a parete su scatola 503. Sensori di temperatura a bordo macchina e possiblità di gestione batteria ausiliaria acqua calda.
Sensori umidità / qualità aria integrati nel display remoto.
EVCNV2-N: controllo remoto evoluto con sensori integrati di umidità e VOC/CO₂ colore nero.
EVCNV2-B: controllo remoto evoluto con sensori integrati di umidità e VOC/CO₂ colore bianco.
EVCNW2-N: controllo remoto evoluto con sensori integrati di umidità e VOC/CO₂, con Wi-Fi integrato colore nero.
EVCNW2-B: controllo remoto evoluto con sensori integrati di umidità e VOC/CO₂ con Wi-Fi integrato colore bianco.
Sensori umidità / qualità aria integrati nel display remoto.
EVCNV2-N: controllo remoto evoluto con sensori integrati di umidità e VOC/CO₂ colore nero.
EVCNV2-B: controllo remoto evoluto con sensori integrati di umidità e VOC/CO₂ colore bianco.
EVCNW2-N: controllo remoto evoluto con sensori integrati di umidità e VOC/CO₂, con Wi-Fi integrato colore nero.
EVCNW2-B: controllo remoto evoluto con sensori integrati di umidità e VOC/CO₂ con Wi-Fi integrato colore bianco.
Configurazione elettronica IN2
Configurazioni A o B selezionabili da elettronica.
Impiego
Abitazioni, ambulatori, per il ricambio dell'aria con riduzione fino al 90% dello spreco di energia.
Caratteristiche tecniche
| Grandezza EVHRP SLIM | EVHRP SLIM | |
| Tipo di Ventilatori | Centrifughi a pale avanti - motore elettronico direttamente accoppiato Brushless | |
| Numero Ventilatori | Nr. | 2 |
| portata aria | m³/h | 110 |
| Pressione utile | Pa | 100 |
| Scambiatore di calore (Dati riferiti alla norma UNI EN 13141-7 Temp.interna 20° - Umidità interna 28% - Temp.esterna 7° - Umidità esterna 72%) | ||
| Tipo di scambiatore | Piastre controcorrente - materiale polipropilene | |
| Numero Scambiatori | Nr. | 1 |
| Efficienza di recupero | % | 89,5 |
| Filtri | ||
| Tipo di Filtri | Filtri Piani | |
| Classe di filtrazione | ePM1 80% | |
| Dati acustici (Dati riferiti alla norma UNI EN 3741 e UNI EN 3744) | ||
| Potenza sonora Lw trasmessa dalla struttura | dB(A) | 49 |
| Potenza sonora Lw irradiata dal canale | dB(A) | 53 |
| Pressione sonora media Lp a 1 mt | dB(A) | 42 |
| Pressione sonora media Lp a 3 mt | dB(A) | 34 |
| Dati elettrici | ||
| Alimentazione | V / ph / Hz | 230 / 1 / 50 |
| Corrente assorbita | A | 0,35 |
| Potenza assorbita | W | 41 |
| Grado di protezione | IP | X2 |
| Dimensionali | ||
| Larghezza | mm | 580 |
| Profondità | mm | 580 |
| altezza | mm | 190 |
| Diametro attacchi | mm | 125 |
| Scarico condensa | mm | 12 |
| Peso | kg | 15 |
| classificazione dei vari modelli secondo il regolamento europeo 1253/2014 e 1254/2014 | ||
| Con controllo remoto EVCNV2 - EVCNW2 (UR/VOC-Co2) | - | A |
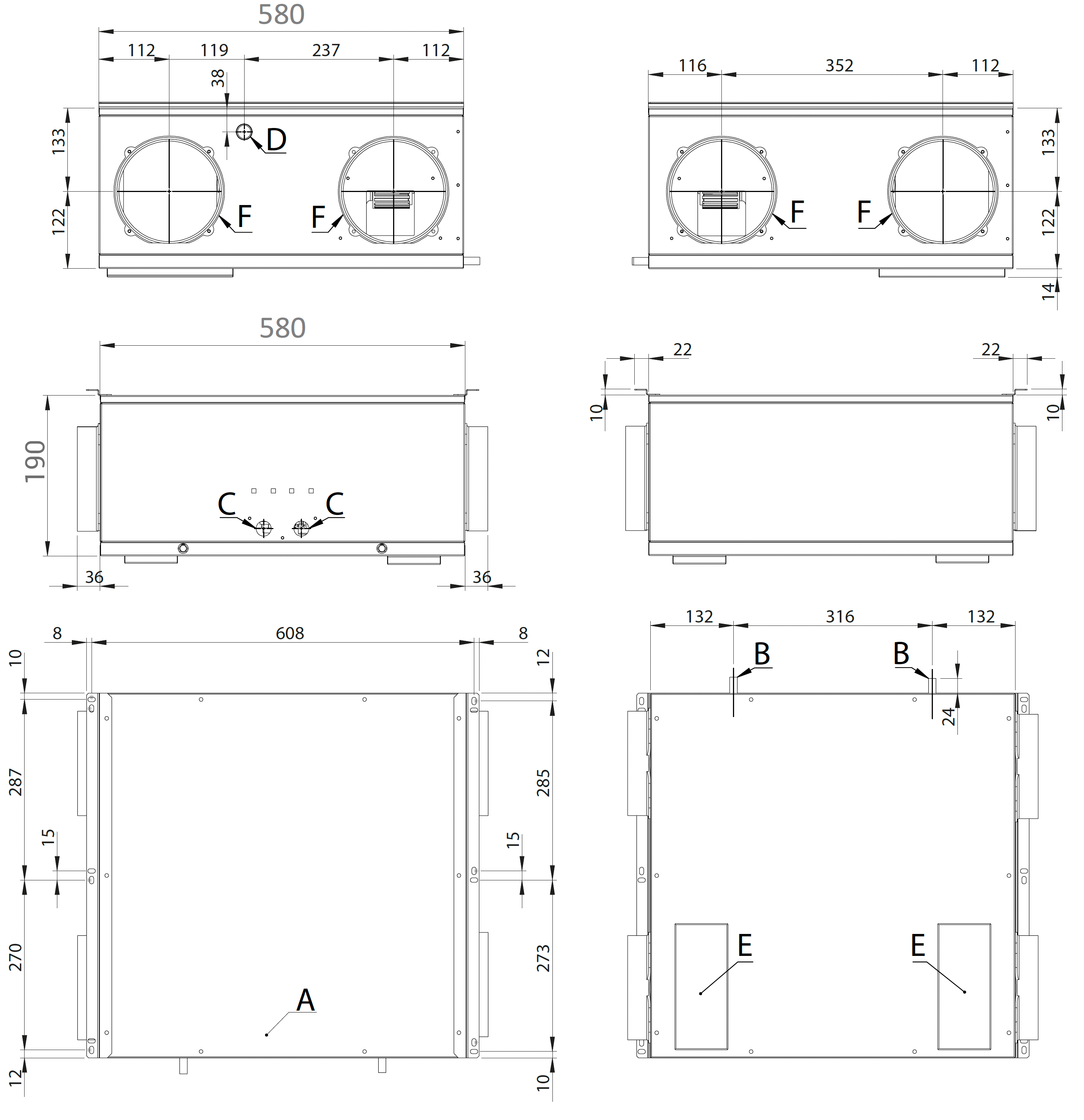
Dimensioni EVHRP SLIM (INSTALLAZIONE SOLO ORIZZONTALE)
| Riferimento | Descrizione |
| A | Quadro elettrico |
| B | Scarico condensa installazione orizzontale |
| C | Passaggio cavi alimentazione elettrica e display |
| D | Scarico condensa installazione verticale |
| E | Portine filtri |
| F | Attacchi circolari Ø 160mm |
Configurazioni EVHRP SLIM
| Riferimento | Descrizione |
| PAE | Presa aria esterna |
| EXP | Espulsione |
| IMM | Immissione ambiente |
| RIP | Ripresa ambiente |
Installazione ORIZZONTALE
Installazione ORIZZONTALE:
Listino prezzi VERSIONE S2:
| EVHRP SLIM (configurazione A) | controllo elettronico remoto EVTDV | Scatola ad incasso per EVTDV | sensore qualità dell'aria EVSQV | kit coppia filtri |
| euro | euro | euro | euro | euro |
| 1.682,39 | 188,78 | 17,78 | 262,66 | 66,05 |
Listino prezzi VERSIONE IN2:
| EVHRP SLIM (configurazione A) | controllo elettronico remoto EVCNV2-N colore nero | controllo elettronico remoto EVCNV2 -B colore bianco | controllo elettronico remoto EVCNW2-N con collegamento Wi-Fi colore nero | controllo elettronico remoto EVCNW2-B con collegamento Wi-Fi colore bianco | kit coppia filtri |
| euro | euro | euro | euro | euro | euro |
| 1.813,87 | 230,88 | 230,88 | 285,05 | 285,05 | 66,05 |