Descrizione

Bocchette a barre orizzontali fisse con deflessione 0° o 15°, profili in alluminio.

Caratteristiche

Materiale: alluminio.

Finitura: anodizzato naturale.

Installazione: fissaggio con staffe.

Impiego

Per impianti di condizionamento e ventilazione, per fan-coil, sia in mandata che in ripresa.

Installazione

Su pareti leggere in cartongesso e in legno con spessore 12,5 mm. Su pareti in muratura.

Modelli

  • EBLF-20/0°: con cornice e barre fisse frontali con deflessione 0°;
  • EBLF-20/15°: con cornice e barre fisse frontali con deflessione 15°.

Accessori

SC - Serranda di taratura in acciaio zincato con alette a movimento contrapposto.

A richiesta

Verniciatura colore bianco RAL9016 o altri colori RAL a scelta.

Dati di funzionamento

Vk: velocità efficace (m/s)
m³/h: portata
Pa: perdite di carico in Pascal
L1 (m): lancio riferito ad una velocità terminale Vt= 0,25 m/s montati in prossimità del soffitto (con altezza dal pavimento non superiore ai 3 m); per distanze superiori correggere il lancio moltiplicandolo x 0,7
dB(A): indice di rumorosità

Tutte le dimensioni sono espresse in mm.

Dimensioni LxH2 x output digitali (6 terminali, fili da min. 0.5 mm² a max. 1.5 mm²) – NO/NC relè (125 V AC – 60 W)Vk 2 m/sVk 3 m/sVk 4 m/s
m2m³/hL1m³/hL1m³/hL1
400x750,0151082,41603,62134,8
500x750,0191972,52013,82685,1
600x750,0221582,62433,93235,2
800x750,0302162,83264,24345,6
1000x750,0382742,94084,45455,8
1200x750,04633134974,56626
400x1000,0201442,62163,82925,1
500x1000,0262303,32764,13675,4
600x1000,0312813,53324,24435,6
800x1000,0413743,84464,45955,9
1000x1000,0524753,95604,77466,2
1200x1000,0625902,66704,88936,4
400x1250,0261872,72784,13705,4
500x1250,0322302,83504,24675,6
600x1250,0392812,94224,45635,9
800x1250,0523743,15664,77556,2
1000x1250,0664753,37114,99476,5
1200x1250,0825903,48865,111496,9
400x1500,0312232,83374,24495,6
500x1500,0392812,94244,45665,9
600x1500,04733835124,66826,1
800x1500,0644613,26874,99166,5
1000x1500,0805763,48625,111496,8
1200x1500,0966913,510375,213827
400x2000,04230234554,56076
500x2000,0533803,15734,77646,2
600x2000,0644613,26914,99226,5
800x2000,0866193,49275,212376,9
1000x2000,1087783,611645,415527,2
1200x2000,1309363,714045,618727,4
400x3000,0644613,26914,99226,3
500x3000,0815833,38755,111666,6
600x3000,0976983,510505,314007
800x3000,1309363,714095,618797,5
1000x3000,16411813,917685,923577,8
1200x3000,19814264,121386,228518,3
400x4000,0846033,49045,112056,9
500x4000,1057533,611305,415077,2
600x4000,1269043,713565,618087,4
800x4000,16712053,918085,924117,9
1000x4000,20915074,122606,230138,2
1200x4000,25118087,127126,436168,5
Pa 3712
dB(A) 15/2028/3238 / 42

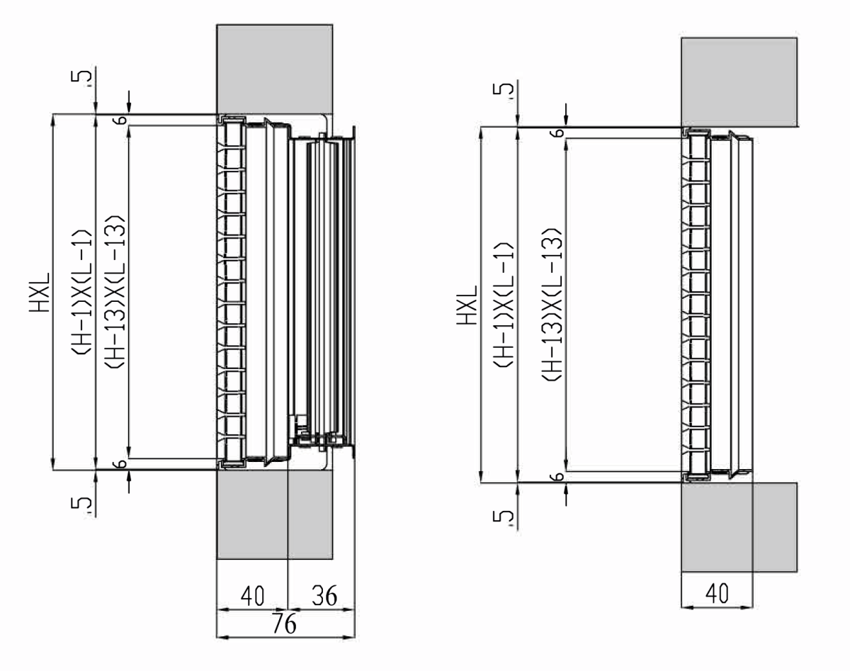
EBLF 20/0° EBLF 20/15° dimensioni con e senza serranda su muratura

Per l’installazione sono necessari il kit di fissaggio composto da 4 staffe, fornito con l’articolo.
N.B. per l’installazione su parete in muratura non sono disponibili le altezze 75mm,100 mm.

 

EBLF 20/0° EBLF 20/15° dimensioni con e senza serranda su cartongesso

Per l’installazione sono necessari il kit di fissaggio composto da 4 staffe, non fornito con l’articolo.

SC - Serranda di taratura

Serranda di taratura in acciaio zincato ad alette con movimento contrapposto.

Dimensioni massime L x H per costruzione in unico pezzo 1000 mm x 600 mm.

 

Listino Prezzi EBLF

Dimensioni LxHEBLF-20/0°EBLF-20/15°SC - Serranda di taratura
euroeuroeuro
400x7532,36 32,36 17,73
500x7539,98 39,98 21,16
600x7543,21 43,21 24,21
800x7550,76 50,76 30,43
1000x7559,41 59,41 37,34
1200x7571,31 71,31 48,41
400x10039,98 39,98 17,73
500x10046,47 46,47 21,16
600x10049,71 49,71 24,21
800x10057,27 57,27 30,43
1000x10068,10 68,10 37,34
1200x10081,72 81,72 48,41
400x12544,30 44,30 20,46
500x12549,71 49,71 23,69
600x12557,27 57,27 27,00
800x12562,66 62,66 34,58
1000x12579,97 79,97 41,67
1200x12595,95 95,95 53,99
400x15049,71 49,71 20,46
500x15051,86 51,86 23,69
600x15062,66 62,66 27,00
800x15082,12 82,12 34,58
1000x15094,02 94,02 41,67
1200x150112,83 112,83 53,99
400x20068,10 68,10 25,31
500x20079,97 79,97 29,73
600x20085,36 85,36 34,25
800x200102,65 102,65 41,97
1000x200125,34 125,34 46,84
1200x200150,41 150,41 68,50
400x30085,92 85,92 35,42
500x30097,22 97,20 39,00
600x300116,71 116,71 42,63
800x300150,19 150,19 51,72
1000x300179,24 179,24 62,36
1200x300215,09 215,09 85,26
400x400103,74 103,74 40,57
500x400129,63 129,63 49,00
600x400155,61 155,61 52,67
800x400200,27 200,27 64,45
1000x400239,00 239,00 76,48
1200x400286,79 286,79 105,35

Listino prezzi EBLF verniciate bianco RAL 9016

Dimensioni LxHEBLF-20/0°EBLF-20/15°SC - Serranda di taratura
euroeuroeuro
400x7538,83 38,83 17,73
500x7547,98 124,48 21,16
600x7551,85 51,85 24,21
800x7560,91 60,91 30,43
1000x7571,30 71,30 37,34
1200x7585,55 85,55 48,41
400x10047,98 47,98 17,73
500x10055,76 55,76 21,16
600x10059,65 59,65 24,21
800x10068,72 68,72 30,43
1000x10081,71 81,71 37,34
1200x10098,06 98,06 48,41
400x12553,16 53,16 20,46
500x12559,65 59,65 23,69
600x12568,72 68,72 27,00
800x12575,19 75,19 34,58
1000x12595,95 95,95 41,67
1200x125115,13 115,13 53,99
400x15059,65 59,65 20,46
500x15062,23 62,23 23,69
600x15075,19 75,19 27,00
800x15098,53 98,53 34,58
1000x150112,81 112,81 41,67
1200x150135,38 135,38 53,99
400x20081,71 81,71 25,31
500x20095,95 95,95 29,73
600x200102,41 102,41 34,25
800x200123,17 123,17 41,97
1000x200150,40 150,40 46,84
1200x200180,47 180,47 68,50
400x300103,09 103,09 35,42
500x300116,66 116,63 39,00
600x300140,04 140,04 42,63
800x300180,21 180,21 51,72
1000x300215,06 150,40 62,36
1200x300258,08 258,08 85,26
400x400124,48 124,48 40,57
500x400155,53 155,53 49,00
600x400186,71 186,71 52,67
800x400240,29 240,29 64,45
1000x400286,76 286,76 76,48
1200x400344,11 344,11 105,35

Ricambio kit di fissaggio

Per l’installazione è necessario il kit di fissaggio composto da 4 staffe.

DescrizioneEuro
Kit di Fissaggio29,71