EVSLC Termoventilante canalizzabile
Unità compatta idronica per sistemi di climatizzazione.<br /> Installazione a soffitto e parete a scomparsa.<br /> Motori EC a portata costante.
Descrizione:
EVSLC è una termoventilante ad incasso che permette, in abbinamento ad una pompa di calore, di riscaldare e raffreddare in modo ottimale ambienti sia residenziali sia del terziario.
Caratteristiche:
EVSLC è caratterizzato da dimensioni compatte grazie alle quali è possibile un’agevole installazione a scomparsa sia a soffitto che a parete.
La struttura è costituita da un telaio autoportante in lamiera zincata con isolamento termico ed acustico interno, da una batteria idronica dimensionata adeguatamente per un soddisfacente scambio termico e da una sezione filtrante a bassa perdita di carico e facilmente rimovibile.
Ogni unità è inoltre dotata di un ventilatore centrifugo EC a basso consumo energetico con pale avanti per una silenziosità ottimale. I motori inoltre sono a PORTATA COSTANTE e questo permette un autoadattamento all’impianto realizzato.
Sono disponibili quattro taglie con potenze termiche e frigorifere diverse per consentire la migliore scelta in base alle necessità impiantistiche.
La struttura è costituita da un telaio autoportante in lamiera zincata con isolamento termico ed acustico interno, da una batteria idronica dimensionata adeguatamente per un soddisfacente scambio termico e da una sezione filtrante a bassa perdita di carico e facilmente rimovibile.
Ogni unità è inoltre dotata di un ventilatore centrifugo EC a basso consumo energetico con pale avanti per una silenziosità ottimale. I motori inoltre sono a PORTATA COSTANTE e questo permette un autoadattamento all’impianto realizzato.
Sono disponibili quattro taglie con potenze termiche e frigorifere diverse per consentire la migliore scelta in base alle necessità impiantistiche.
Elettronica di comando:
Quadro elettrico a bordo unità con microprocessore e regolazione dedicata.
L’unità è venduta in abbinamento al pannello remoto che permette all’utente di controllare la velocità, la temperatura ed i modi di funzionamento.
E’ possibile scegliere tra comando remoto semplice e comando con modulo Wi-Fi che permette di gestire con APP da locale e da remoto il funzionamento del ventilconvettore.
I display disponibili per queste unità sono:
-EVCNV2-N controllo remoto evoluto con sensori integrati, colore nero.
-EVCNV2-B controllo remoto evoluto con sensori integrati, colore bianco.
-EVCNW2-N controllo remoto evoluto con sensori e Wi-Fi integrati, colore nero.
-EVCNW2-B controllo remoto evoluto con sensori e Wi-Fi integrati, colore bianco.
L’unità è venduta in abbinamento al pannello remoto che permette all’utente di controllare la velocità, la temperatura ed i modi di funzionamento.
E’ possibile scegliere tra comando remoto semplice e comando con modulo Wi-Fi che permette di gestire con APP da locale e da remoto il funzionamento del ventilconvettore.
I display disponibili per queste unità sono:
-EVCNV2-N controllo remoto evoluto con sensori integrati, colore nero.
-EVCNV2-B controllo remoto evoluto con sensori integrati, colore bianco.
-EVCNW2-N controllo remoto evoluto con sensori e Wi-Fi integrati, colore nero.
-EVCNW2-B controllo remoto evoluto con sensori e Wi-Fi integrati, colore bianco.
Caratteristiche tecniche
(1) Temperatura acqua batteria 7/12 °C, temperatura aria ambiente 27 °C b.s. e 19 °C b.u. (regolamento EU 2016/2281)
(2) Temperatura acqua batteria 45/40 °C, temperatura aria ambiente 20 °C (regolamento EU 2016/2281)
(3) Dati riferiti alla norma UNI EN 3741 e UNI EN 3744
| Modello EVSLC | 40 | 60 | 80 | 100 | 120 | |
| Portata aria nominale max velocità | m3/h | 390 | 560 | 730 | 905 | 1150 |
| Portata aria nominale med velocità | m3/h | 260 | 350 | 440 | 550 | 750 |
| Portata aria nominale min. velocità | m3/h | 120 | 180 | 240 | 260 | 280 |
| Pressione utile | Pa | 90 | 130 | 110 | 140 | 140 |
| Potenza nominale assorbita ventilatore ricircolo | kW | 0,085 | 0,15 | 0,17 | 0,17 | 0,24 |
| Prestazioni termiche / frigorifere | 40 | 60 | 80 | 100 | 120 | |
| Potenza frigorifera totale 1 | kW | 1,9 | 3,0 | 3,5 | 4,4 | 5,9 |
| Potenza frigorifera sensibile 1 | kW | 1,4 | 2,2 | 2,8 | 3,6 | 4,2 |
| Portata acqua | m3/h | 0,33 | 0,52 | 0,60 | 0,76 | 1,0 |
| Perdita di carico | kPa | 3,9 | 11 | 21 | 14 | 16 |
| Potenza termica totale 2 | kW | 2,3 | 3,2 | 3,9 | 5,3 | 6,2 |
| Portata acqua | m3/h | 0,39 | 0,55 | 0,67 | 0,91 | 1,1 |
| Perdita di carico | kPa | 7,5 | 11 | 21 | 16 | 19 |
| Dati acustici 3 | 40 | 60 | 80 | 100 | 120 | |
| Potenza sonora Lw trasmessa dalla struttura | dB(A) | 55 | 59 | 60 | 62 | 63 |
| Potenza sonora Lw irradiata nel canale | dB(A) | 59 | 64 | 68 | 69 | 71 |
| Pressione sonora media Lp ad 1Mt | dB(A) | 43 | 46 | 48 | 49 | 50 |
| Pressione sonora media Lp ad 3 Mt | dB(A) | 37 | 38 | 40 | 41 | 42 |
| Dati elettrici | 40 | 60 | 80 | 100 | 120 | |
| Alimentazione | V / ph / Hz | 230 / 1 / 50 | ||||
| Potenza max assorbita | kW | 0,09 | 0,19 | 0,19 | 0,28 | 0,28 |
| Corrente max assorbita | A | 0,7 | 1,3 | 1,3 | 1,9 | 1,9 |
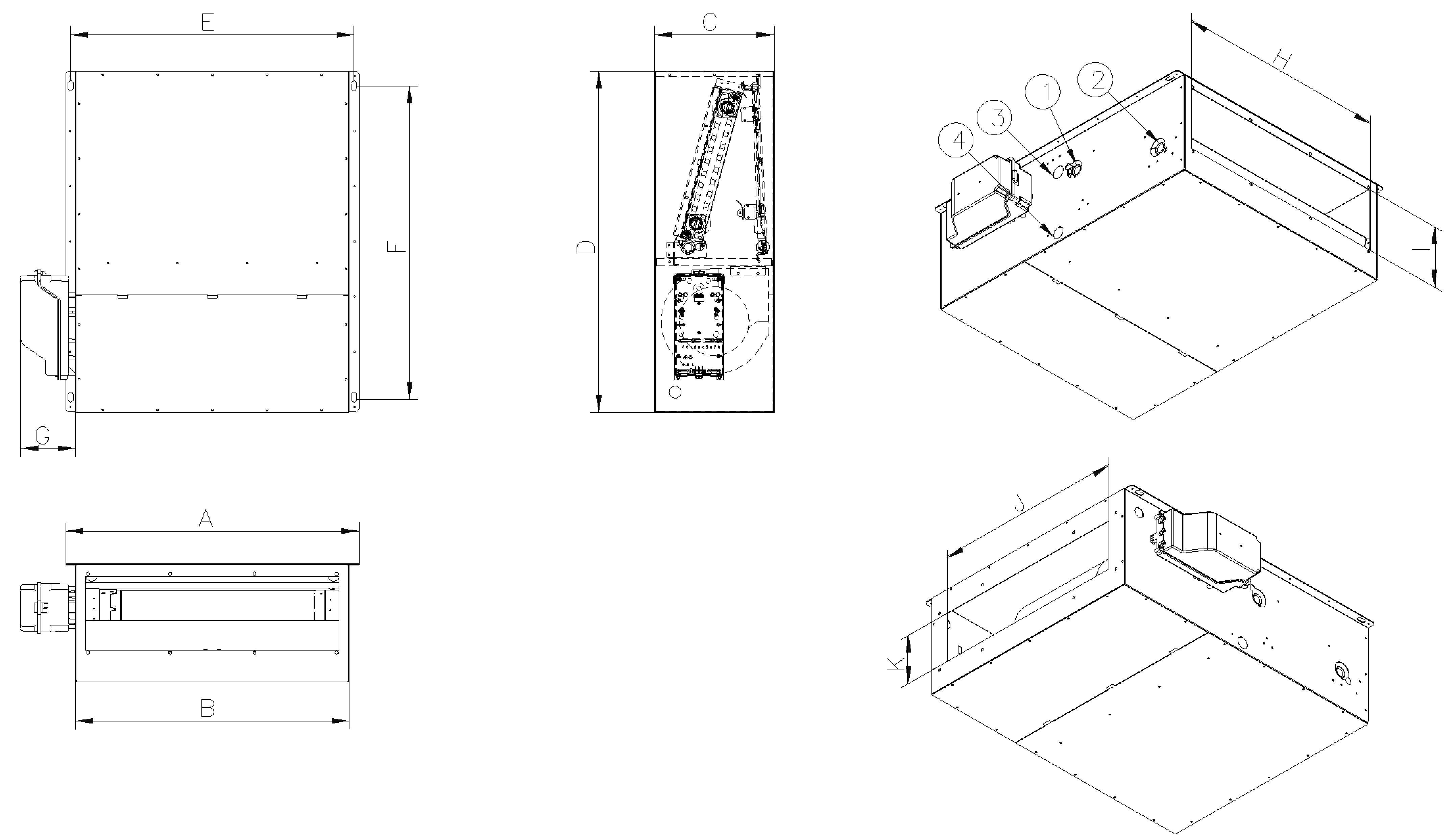
Dimensioni
Tutte le dimensioni sono espresse in mm
| Modello | A | B | C | D | E | F | G | Peso kg | Mandata aria | Ripresa aria | ||
| H | I | J | K | |||||||||
| EVSLC 40 | 590 | 550 | 240 | 695 | 570 | 637 | 90 | 32 | 460 | 150 | 430 | 160 |
| EVSLC 60 | 790 | 750 | 240 | 695 | 770 | 637 | 90 | 42 | 660 | 150 | 630 | 160 |
| EVSLC 80 | 990 | 950 | 240 | 695 | 970 | 637 | 90 | 46 | 860 | 150 | 830 | 160 |
| EVSLC 100 | 1190 | 1150 | 240 | 695 | 1170 | 637 | 90 | 54 | 1060 | 150 | 1030 | 160 |
| EVSLC 120 | 1480 | 1440 | 240 | 695 | 1460 | 637 | 90 | 65 | 1320 | 150 | 1320 | 160 |
Configurazione standard, attacchi batteria ad acqua a SINISTRA rispetto il flusso dell'aria.
A richiesta attacchi batteria ad acqua a DESTRA rispetto il flusso dell'aria.
| Modello | Dimensione attacchi batteria acqua | Dimensione scarico condensa | ||
| 1 - Ingresso | 2 - Uscita | 3 - Versione orizzontale (mm) | 4 - Versione verticale (mm) | |
| EVSLC 40 | 3/4" F | 3/4" F | 18 | 20 |
| EVSLC 60 | 3/4" F | 3/4" F | 18 | 20 |
| EVSLC 80 | 3/4" F | 3/4" F | 18 | 20 |
| EVSLC 100 | 3/4" F | 3/4" F | 18 | 20 |
| EVSLC 120 | 3/4" F | 3/4" F | 18 | 20 |
Installazione orizzontale:
A: mandata aria
B: ripresa aria
Installazione verticale:
A: mandata aria
B: ripresa aria
Configurazione aria di ripresa:
Nelle unità EVSLC è possibile variare la bocca della ripresa dell'aria da posteriore a laterale.
Accessori per la mandata e ripresa dell'aria:
| Modello | Descrizione |
| EVSLC 40 | Piastra di mandata con 2 stacchi circolari per tubo flessibile Ø 160 mm |
| Plenum di ripresa con 2 stacchi circolari per tubo flessibile Ø 160 mm | |
| EVSLC 60 | Piastra di mandata con 3 stacchi circolari per tubo flessibile Ø 160 mm |
| Plenum di ripresa con 3 stacchi circolari per tubo flessibile Ø 160 mm | |
| EVSLC 80 | Piastra di mandata con 4 stacchi circolari per tubo flessibile Ø 160 mm |
| Plenum di ripresa con 4 stacchi circolari per tubo flessibile Ø 160 mm | |
| EVSLC 100 | Piastra di mandata con 6 stacchi circolari per tubo flessibile Ø 160 mm |
| Plenum di ripresa con 6 stacchi circolari per tubo flessibile Ø 160 mm | |
| EVSLC 120 | Piastra di mandata con 7 stacchi circolari per tubo flessibile Ø 160 mm |
| Plenum di ripresa con 7 stacchi circolari per tubo flessibile Ø 160 mm |
Listino prezzi:
| Modello | Euro | controllo elettronico remoto EVCNV2-N colore nero | controllo elettronico remoto EVCNV2 -B colore bianco | controllo elettronico remoto EVCNW2-N con collegamento Wi-Fi colore nero | controllo elettronico remoto EVCNW2-B con collegamento Wi-Fi colore bianco | Piastra di mandata | Plenum di ripresa | Filtro di ricambio | Valvola a 2 vie on/off | Valvola a 3 vie on/off |
| EVSLC 40 | 1.352,85 | 230,88 | 230,88 | 285,05 | 285,05 | 62,92 | 188,75 | 42,84 | 321,00 | 380,78 |
| EVSLC 60 | 1.488,77 | 230,88 | 230,88 | 285,05 | 285,05 | 84,34 | 199,46 | 53,55 | 321,00 | 380,78 |
| EVSLC 80 | 1.794,91 | 230,88 | 230,88 | 285,05 | 285,05 | 105,76 | 251,67 | 73,63 | 321,00 | 380,78 |
| EVSLC 100 | 1.924,48 | 230,88 | 230,88 | 285,05 | 285,05 | 136,55 | 273,09 | 95,05 | 321,00 | 380,78 |
| EVSLC 120 | 2.446,57 | 230,88 | 230,88 | 285,05 | 285,05 | 157,96 | 301,20 | 100,40 | 321,00 | 380,78 |