AERBOX Modulo di sanitizzazione e decontaminazione dell’aria negli impianti VMC
Descrizione:
AERBOX è un sistema di sanitizzazione avanzato che sfruttando il fenomeno fisico della ionizzazione, promuove la formazione controllata di particolari specie elettricamente cariche nell’aria attraverso un campo elettrostatico. Le specie ioniche prodotte sono particolarmente efficaci come agenti sanificanti in aria e sulle superfici. AERBOX è costituito dal modulo AERONIX di sanitizzazione e da un plenum di distribuzione in ACCIAO INOX da installare come box di mandata negli impianti di ventilazione meccanica controllata. I tre modelli disponibili si differenziano per la grandezza dell’attacco principale e per il numero di manicotti in polipropilene installati.
AERBOX può essere installato in ogni impianto di ventilazione ed è concepito per la purificazione e la decontaminazione dell’aria in entrata negli ambienti da virus, muffe, batteri, pollini oltre a fumi e odori di varia natura.
Il modulo è molto efficace per prevenire o eliminare la formazione di colonie batteriche e muffe nelle condotte aerauliche.
AERBOX sanifica l’aria e le superfici in modo continuativo, senza effetti collaterali sui materiali, elimina gli odori e migliora il comfort ambientale. Nei luoghi di lavoro garantisce agli operatori la salubrità dell’aria come previsto dalle normative per la sicurezza dei lavoratori. DL.81/2008.
AERBOX può essere installato in ogni impianto di ventilazione ed è concepito per la purificazione e la decontaminazione dell’aria in entrata negli ambienti da virus, muffe, batteri, pollini oltre a fumi e odori di varia natura.
Il modulo è molto efficace per prevenire o eliminare la formazione di colonie batteriche e muffe nelle condotte aerauliche.
AERBOX sanifica l’aria e le superfici in modo continuativo, senza effetti collaterali sui materiali, elimina gli odori e migliora il comfort ambientale. Nei luoghi di lavoro garantisce agli operatori la salubrità dell’aria come previsto dalle normative per la sicurezza dei lavoratori. DL.81/2008.
Caratteristiche:
Le caratteristiche di rilievo di AERBOX sono:
• alta efficienza: abbattimento della carica virale, microbica e dei composti organici volatili fino al 99 %;
• basso consumo energetico: 20VA;
• forte azione deodorigena: elimina gli odori dall’aria in transito;
• processo naturale: non usa o produce sostanze chimiche residue.
Il modulo di sanificazione è costituito dalle unità ionizzanti esposte al flusso d’aria, e da un’elettronica di controllo, racchiusa all’interno di un involucro isolante.
L’elettronica presente nel modulo è predisposta per l’invio di segnali di output utili per segnalare avvisi di manutenzione ed eventuali anomalie.
E’ presente l’interfaccia seriale RS485 con protocollo Modbus per l’interrogazione e la programmazione dei principali parametri e per la diagnosi remota del modulo.
I manicotti per il collegamento al tubo corrugato sono realizzati in polipropilene e grazie ad un sistema ad aggancio rapido sono perfettamente intercambiabili tra il diametro 63 mm (di serie) e 76 mm (accessorio).
Inoltre i manicotti di serie diametro 63 mm sono completi di una serranda a farfalla comandabile dall’esterno per una semplice ed efficace taratura dell’impianto.
I manicotti diametro 76 mm sono anch’essi predisposti per il montaggio della serranda a farfalla, che viene fornita a parte e su richiesta.
Ogni modello è predisposto per l’applicazione di altri 4 manicotti laterali, 2 per ogni lato stretto.
• alta efficienza: abbattimento della carica virale, microbica e dei composti organici volatili fino al 99 %;
• basso consumo energetico: 20VA;
• forte azione deodorigena: elimina gli odori dall’aria in transito;
• processo naturale: non usa o produce sostanze chimiche residue.
Il modulo di sanificazione è costituito dalle unità ionizzanti esposte al flusso d’aria, e da un’elettronica di controllo, racchiusa all’interno di un involucro isolante.
L’elettronica presente nel modulo è predisposta per l’invio di segnali di output utili per segnalare avvisi di manutenzione ed eventuali anomalie.
E’ presente l’interfaccia seriale RS485 con protocollo Modbus per l’interrogazione e la programmazione dei principali parametri e per la diagnosi remota del modulo.
I manicotti per il collegamento al tubo corrugato sono realizzati in polipropilene e grazie ad un sistema ad aggancio rapido sono perfettamente intercambiabili tra il diametro 63 mm (di serie) e 76 mm (accessorio).
Inoltre i manicotti di serie diametro 63 mm sono completi di una serranda a farfalla comandabile dall’esterno per una semplice ed efficace taratura dell’impianto.
I manicotti diametro 76 mm sono anch’essi predisposti per il montaggio della serranda a farfalla, che viene fornita a parte e su richiesta.
Ogni modello è predisposto per l’applicazione di altri 4 manicotti laterali, 2 per ogni lato stretto.
Impiego:
Il modulo AERBOX può essere utilizzato in qualunque tipo di impianto di Ventilazione Meccanica Controllata con una portata aria fino ai 500m³/h. Il suo funzionamento può essere continuativo, cioè sempre acceso in presenza del flusso d’aria proveniente dal recuperatore di calore, oppure controllato mediante la comunicazione seriale RS485.
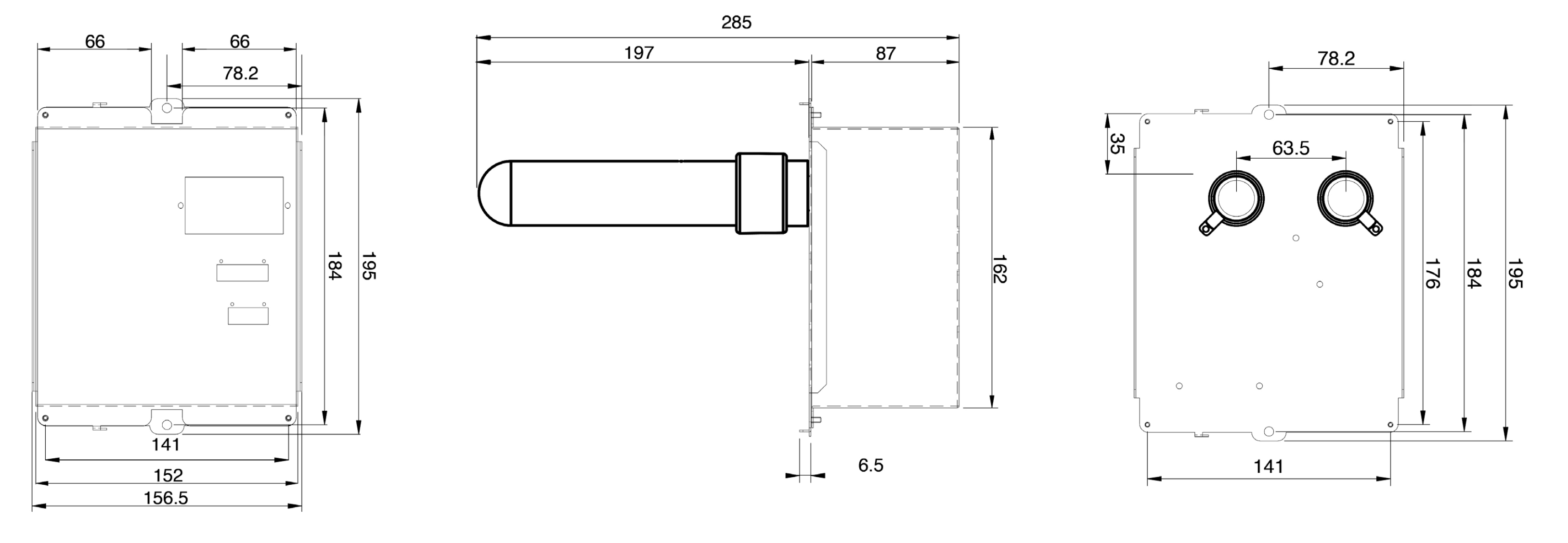
Dimensioni
Listino prezzi box di distribuzione per AERBOX
| Modello | dimensioni nominali | attacco principale ØD nominale (maschio) | n. attacchi | attacchi opzionali | prezzo |
| mm | mm | ||||
| L x H x B | mm | euro | |||
| AERBOX-463 | 270 x 401 x 200 | 125 | 4 | 4 | 1.260,00 |
| AERBOX-663 | 390 x 401 x 200 | 160 | 6 | 4 | 1.285,71 |
| AERBOX-863 | 510 x 401 x 200 | 160 | 8 | 4 | 1.311,43 |
Listino prezzi accessori
| Descrizione | Euro |
| Manicotto aggiuntivo per tubo diametro 63 mm interno in confezione da 5 pezzi | 24,99 |
| Manicotto aggiuntivo per tubo diametro 76 mm interno in confezione da 5 pezzi | 24,99 |
| Serranda di regolazione per attacchi diametro 63 mm o 75 mm interno in confezione da 5 pezzi | 14,98 |
| Tappo per manicotto in confezione da 5 pezzi | 14,98 |
Kit tubi ionizzanti:
Descrizione Euro Kit tubi ionizzanti per AERBOX A.R.